Neues Geschäftslokal – Innenausbau auf Mieterwunsch – barrierefrei erreichbar

Ing.-Stern-Straße 16 GL/1, 4020 Linz

Objektinformationen

Objekttyp:

Geschäftslokal

Zimmer:

1

Verfügbar:

01.08.2026

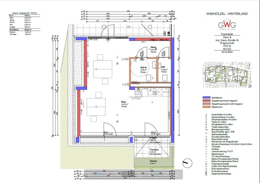
Nutzfläche:

53,33

Stockwerk:

EG

Bautyp:

Neubau

Freifläche:

Loggia

Beschreibung

Das Geschäftslokal liegt im Zentrum der Neubauanlage im Franckviertel im Erdgeschoß. 

Heizwärmebedarf kWh/m²a: 34 Gesamtenergieeffizienz-Faktor fGEE: 0,83

Für Ihre Anfragen stehen wir unter lokal@gwg-linz.at oder Herr Edwin Schachenhofer gerne via Telefon 0732 7613 6053 zur Verfügung.

Lage

Kosten

Gesamtmiete inkl. BK (ohne UST und Energiekosten) €782,51 Kaution/Finanzierungsbeitrag (einmal) € 5.650,00

Die GWG kooperiert betreffend Risikomanagement mit dem Bonitätsdienstleister CRIF GmbH, Rothschildplatz 3, 1020 Wien und dem Kreditschutzverband von 1870, Mozartstraße 11, 4020 Linz, und führt bei Wohnungsanfragen stichprobenweise Bonitätsabfragen durch, die bei negativem Ergebnis zur Rückweisung Ihrer Anfrage führen können.