Modernes Geschäftslokal – barrierefrei und vielseitig nutzbar

Ing.-Stern-Straße 16 GL/1, 4020 Linz

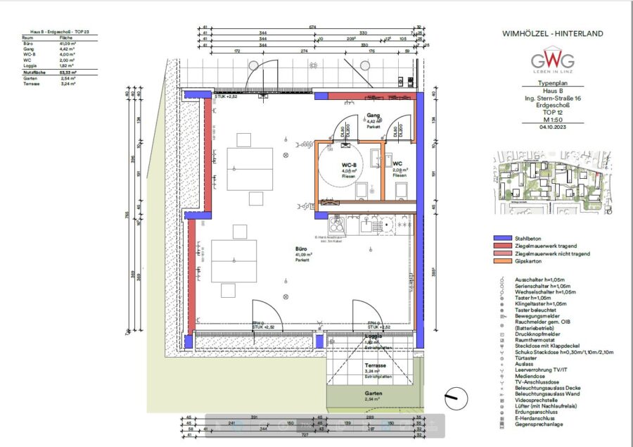
Objektinformationen

Objekttyp:

Geschäftslokal

Zimmer:

1

Verfügbar:

01.08.2026

Nutzfläche:

53,33

Stockwerk:

EG

Bautyp:

Neubau

Freifläche:

Loggia

Beschreibung

Dieses moderne Geschäftslokal befindet sich im Erdgeschoss einer jungen Wohnanlage im Linzer Franckviertel und ist barrierefrei erreichbar. Die Lage im Zentrum der Anlage bietet gute Voraussetzungen für Büro, Praxis, Dienstleistung oder Studio. Verfügbar ist das Lokal ab 01.08.2026

Heizwärmebedarf kWh/m²a: 34 Gesamtenergieeffizienz-Faktor fGEE: 0,83

Für Ihre Anfragen stehen wir unter lokal@gwg-linz.at oder Herr Edwin Schachenhofer gerne via Telefon 0732 7613 6053 zur Verfügung.

Lage

Kosten

Gesamtmiete inkl. BK (ohne UST und Energiekosten) €782,51 Kaution/Finanzierungsbeitrag (einmal) € 5.650,00

Die GWG kooperiert betreffend Risikomanagement mit dem Bonitätsdienstleister CRIF GmbH, Rothschildplatz 3, 1020 Wien und dem Kreditschutzverband von 1870, Mozartstraße 11, 4020 Linz, und führt bei Wohnungsanfragen stichprobenweise Bonitätsabfragen durch, die bei negativem Ergebnis zur Rückweisung Ihrer Anfrage führen können.