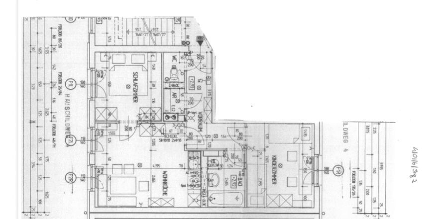
Perfekt aufgeteilte 3 -Raum – Wohnung (Wohnküche, Schlafzimmer, Kinderzimmer) im 1. Stock ** fix zugeordneter PKW Abstellpatz**

Hauschildweg 4 01/6/Stiege 2, 4030 Linz

Objektinformationen

Objekttyp:

Wohnung

Zimmer:

3

Verfügbar:

15.11.2025

Wohnfläche:

55,39

Stockwerk:

1

Ausstattung:

Abstellraum

Beschreibung

Ausstattung: Wohnküche, Schlafzimmer, Kinderzimmer, Vorzimmer, Abstellraum, Bad (Badewanne), WC.

Das Gebäude verfügt über keinen Lift.

Der Wohnung ist ein KFZ Abstellplatz fix zugeordnet. 

Kellerabteil vorhanden

Heizwärmebedarf kWh/m²a: 70,10 Gesamtenergieeffizienz-Faktor fGEE: 1,24

Lage

Ruhige Wohnanlage in Zördorf in unmittelbarer Nähe zur Fußballschule Linz. Einkaufsmöglichkeiten und Restaurants sind fußläufig erreichbar. 

Kosten

Gesamtmiete (ohne Energiekosten) €552,73 Kaution/Finanzierungsbeitrag (einmal) € 1.700,06

Wir freuen uns auf Ihre Wohnungsanfrage
Wohnungsanfrage senden

Die GWG kooperiert betreffend Risikomanagement mit dem Bonitätsdienstleister CRIF GmbH, Rothschildplatz 3, 1020 Wien und dem Kreditschutzverband von 1870, Mozartstraße 11, 4020 Linz, und führt bei Wohnungsanfragen stichprobenweise Bonitätsabfragen durch, die bei negativem Ergebnis zur Rückweisung Ihrer Anfrage führen können.